Boligen
- Kontantpris kr. 1.595.000
- Link Tjek Boliglån
- BoligtypeVilla
- Boligareal 129 m²
- Garage 32 m²
- Carport 15 m²
- Værelser 4
- Grundareal 704 m²
- Energimærke D
- Ejerudgift pr. md. kr. 1.540
- Byggeår 1943
Dokumenter
Hent dokumenter
3D TOUR
Plantegninger
Velkommen til Svanedamsvej 2C – en sjældent attraktiv kombination af skov, fjord og byliv samlet i én indflytningsklar villa.
Allerede på turen hertil fornemmer man stemningen: når man drejer ind på Svanedamsvej, kører man direkte ind i Krabbesholm Skov, hvor store, gamle trækroner bøjer sig ind over vejen som en grøn allé, før man når frem til huset.
Her åbenbarer boligen sig moderne og harmonisk – nænsomt moderniseret og udvidet i 2007, samtidig med at den bevarer sin indbydende charme.
Indenfor glider de 129 m² sammen i et naturligt flow. Køkken‑alrummet er husets hjerte; lyst, rummeligt og udført i tidløse materialer, der inviterer til både hverdagshygge og festlige middage. Store vinduespartier bringer haven helt ind i rummet, mens den tilstødende stue – med dobbelte terrassedøre – giver en flydende overgang mellem inde og ude.
Stueplanet rummer desuden to gode værelser, et lækkert badeværelse med både bruseniche og badekar samt et separat gæstetoilet. I bryggerset er der plads til alt det praktiske, så resten af hjemmet kan holdes roligt og ryddeligt.
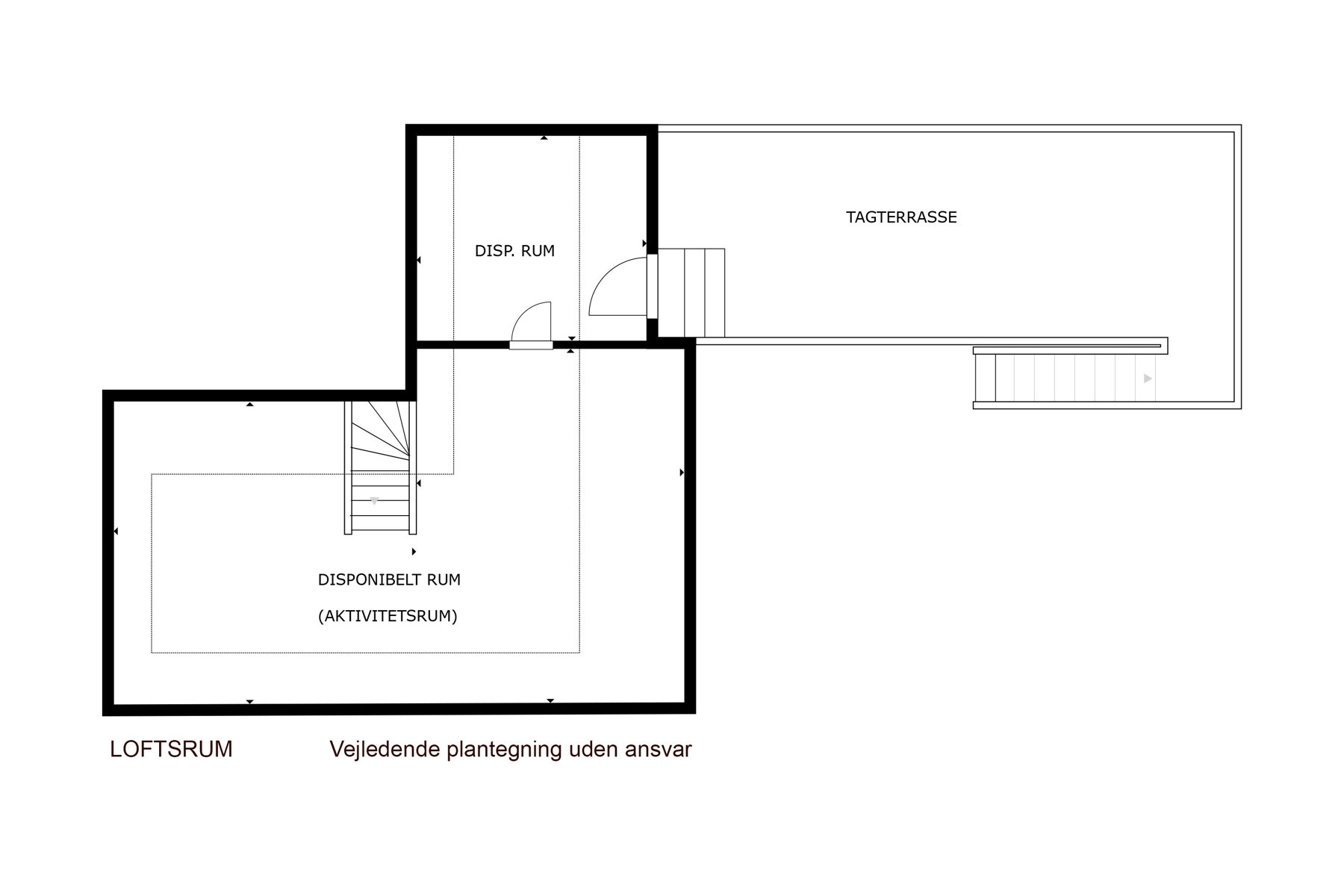
Loftsrummet er indrettet med to disponible rum, perfekte som kontor, hobbyafdeling eller opbevaring. Herfra træder man ud på den 32 m² store tagterrasse: et privat opholdsrum i første parket til solen, hvor en separat trappe leder direkte ned i den lukkede, grønne have.
Haven er et fredfyldt fristed med terrasser på begge sider af huset – så solen kan nydes mange timer om dagen.
Garage, carport og ekstra skurplads sørger for, at både biler, cykler og udstyr har deres egen plads.
Placeringen er helt unik: Krabbesholm Skov som nabo giver daglige naturoplevelser lige udenfor døren, mens Skive Havn blot 300 meter væk byder på maritim atmosfære, caféstemning og aktivitetsmuligheder på vandet. Og får man lyst til en isvaffel, ligger den berømte Havnekiosk kun 60 meter nede ad vejen.
Svanedamsvej 2C forener opdateret komfort, fleksible kvadratmeter og en beliggenhed, der lader natur, vand og byliv smelte sammen. Her kan I flytte direkte ind, lade skovens ro og havnens puls blive en del af hverdagen – og skabe nye minder på både den solrige tagterrasse, i den indbydende have og langs vandkanten.
Book en fremvisning og oplev selv den særlige atmosfære, der gør dette hjem til noget ganske unikt.
Allerede på turen hertil fornemmer man stemningen: når man drejer ind på Svanedamsvej, kører man direkte ind i Krabbesholm Skov, hvor store, gamle trækroner bøjer sig ind over vejen som en grøn allé, før man når frem til huset.
Her åbenbarer boligen sig moderne og harmonisk – nænsomt moderniseret og udvidet i 2007, samtidig med at den bevarer sin indbydende charme.
Indenfor glider de 129 m² sammen i et naturligt flow. Køkken‑alrummet er husets hjerte; lyst, rummeligt og udført i tidløse materialer, der inviterer til både hverdagshygge og festlige middage. Store vinduespartier bringer haven helt ind i rummet, mens den tilstødende stue – med dobbelte terrassedøre – giver en flydende overgang mellem inde og ude.
Stueplanet rummer desuden to gode værelser, et lækkert badeværelse med både bruseniche og badekar samt et separat gæstetoilet. I bryggerset er der plads til alt det praktiske, så resten af hjemmet kan holdes roligt og ryddeligt.
Loftsrummet er indrettet med to disponible rum, perfekte som kontor, hobbyafdeling eller opbevaring. Herfra træder man ud på den 32 m² store tagterrasse: et privat opholdsrum i første parket til solen, hvor en separat trappe leder direkte ned i den lukkede, grønne have.
Haven er et fredfyldt fristed med terrasser på begge sider af huset – så solen kan nydes mange timer om dagen.
Garage, carport og ekstra skurplads sørger for, at både biler, cykler og udstyr har deres egen plads.
Placeringen er helt unik: Krabbesholm Skov som nabo giver daglige naturoplevelser lige udenfor døren, mens Skive Havn blot 300 meter væk byder på maritim atmosfære, caféstemning og aktivitetsmuligheder på vandet. Og får man lyst til en isvaffel, ligger den berømte Havnekiosk kun 60 meter nede ad vejen.
Svanedamsvej 2C forener opdateret komfort, fleksible kvadratmeter og en beliggenhed, der lader natur, vand og byliv smelte sammen. Her kan I flytte direkte ind, lade skovens ro og havnens puls blive en del af hverdagen – og skabe nye minder på både den solrige tagterrasse, i den indbydende have og langs vandkanten.
Book en fremvisning og oplev selv den særlige atmosfære, der gør dette hjem til noget ganske unikt.
